Get Full Government Meeting Transcripts, Videos, & Alerts Forever!

Local commission votes to preserve historic home amid community concerns

March 28, 2024 | Newburyport City, Essex County, Massachusetts



Black Friday Offer

Get Lifetime Access to Full Government Meeting Transcripts

$99/year $199 LIFETIME

Lifetime access to full videos, transcriptions, searches & alerts • County, city, state & federal

Full Videos
Transcripts
Unlimited Searches
Real-Time Alerts
AI Summaries
Claim Your Spot Now

Limited Spots • 30-day guarantee

This article was created by AI summarizing key points discussed. AI makes mistakes, so for full details and context, please refer to the video of the full meeting. Please report any errors so we can fix them. Report an error »

Local commission votes to preserve historic home amid community concerns
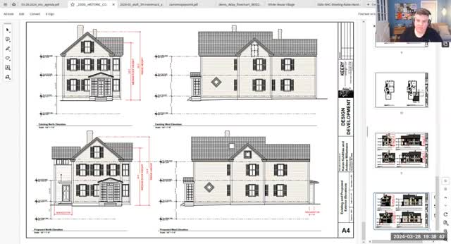
In a pivotal meeting on March 28, 2024, the Newburyport Historical Commission voted to designate a local home as "preferably preserved," a decision that will delay any potential demolition and allow for further review of the property’s future. The motion, initiated by Mark Shandran and seconded by Chris Sotto, received unanimous support from the commission members, emphasizing the community's commitment to preserving its historical architecture.

The discussion highlighted the significance of the house's original features, with owner Karen Colpa noting that certain structural elements appear to be part of the original design. This sentiment resonated with the commission, which acknowledged the importance of maintaining the town's historical integrity.

The vote means that the property will now be under a demolition delay, providing time for the owners to submit alternative plans for the house's renovation or preservation. This decision reflects a broader trend in Newburyport, where residents and officials are increasingly prioritizing the conservation of historical sites amidst ongoing development pressures.

As the commission moves forward, they will continue to engage with the public and property owners to ensure that the community's historical character is preserved for future generations.

View full meeting

This article is based on a recent meeting—watch the full video and explore the complete transcript for deeper insights into the discussion.

View full meeting

Sponsors

Proudly supported by sponsors who keep Massachusetts articles free in 2025

Scribe from Workplace AI
Scribe from Workplace AI