Get Full Government Meeting Transcripts, Videos, & Alerts Forever!

Historic Home Addition Sparks Debate Over Asymmetry and Design Standards

March 28, 2024 | Newburyport City, Essex County, Massachusetts



Black Friday Offer

Get Lifetime Access to Full Government Meeting Transcripts

$99/year $199 LIFETIME

Lifetime access to full videos, transcriptions, searches & alerts • County, city, state & federal

Full Videos
Transcripts
Unlimited Searches
Real-Time Alerts
AI Summaries
Claim Your Spot Now

Limited Spots • 30-day guarantee

This article was created by AI summarizing key points discussed. AI makes mistakes, so for full details and context, please refer to the video of the full meeting. Please report any errors so we can fix them. Report an error »

Historic Home Addition Sparks Debate Over Asymmetry and Design Standards
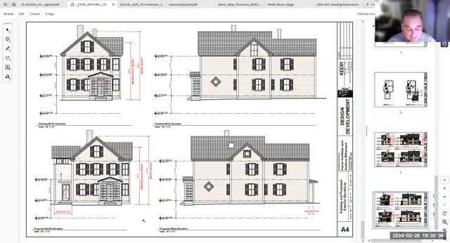
In the heart of Newburyport, the Historical Commission convened on March 28, 2024, to deliberate on the architectural nuances of a proposed addition to a historic home. The meeting buzzed with a mix of passion and concern as members examined the delicate balance between preserving historical integrity and embracing modern design.

As the discussion unfolded, the topic of symmetry emerged as a focal point. One commissioner expressed a personal affinity for linear and symmetrical designs, reflecting on their own experience living in a Georgian-style home. They voiced apprehension about the proposed addition's lack of symmetry, suggesting that a more streamlined approach could enhance the overall aesthetic. “It’s just not symmetric,” they remarked, highlighting the importance of visual harmony in architectural design.

Another member chimed in, noting the peculiarities of the gabled roof that did not align with the main structure, creating an awkward visual notch. This sentiment resonated with others, who echoed concerns about the addition's integration with the existing home. The conversation revealed a shared understanding of the Secretary of the Interior’s Standards, which advocate for modern additions to be distinct yet complementary to original structures.

The dialogue took an interesting turn as some commissioners defended the merits of asymmetry, particularly in Greek Revival architecture. They argued that many historic homes feature asymmetrical designs, with doorways and windows often placed off-center. This perspective opened the floor to a broader discussion about the evolving nature of architectural styles and the need for flexibility in design approaches.

As the meeting progressed, the commissioners acknowledged the challenges of blending new elements with historical features. The conversation highlighted the importance of thoughtful design that respects the past while accommodating contemporary needs. One member suggested that visual aids, such as 3D renderings, could enhance understanding and facilitate better decision-making in future proposals.

In conclusion, the meeting underscored the delicate dance between preservation and innovation in Newburyport’s architectural landscape. As the Historical Commission navigates these discussions, the community watches closely, eager to see how the city will honor its rich heritage while embracing the future.

View full meeting

This article is based on a recent meeting—watch the full video and explore the complete transcript for deeper insights into the discussion.

View full meeting

Sponsors

Proudly supported by sponsors who keep Massachusetts articles free in 2025

Scribe from Workplace AI
Scribe from Workplace AI