Get Full Government Meeting Transcripts, Videos, & Alerts Forever!

CRSA architects implement energy standards in new building projects

November 14, 2023 | Snyderville Basin Planning Commission, Snyderville, Summit County, Utah


This article was created by AI summarizing key points discussed. AI makes mistakes, so for full details and context, please refer to the video of the full meeting. Please report any errors so we can fix them. Report an error »

CRSA architects implement energy standards in new building projects
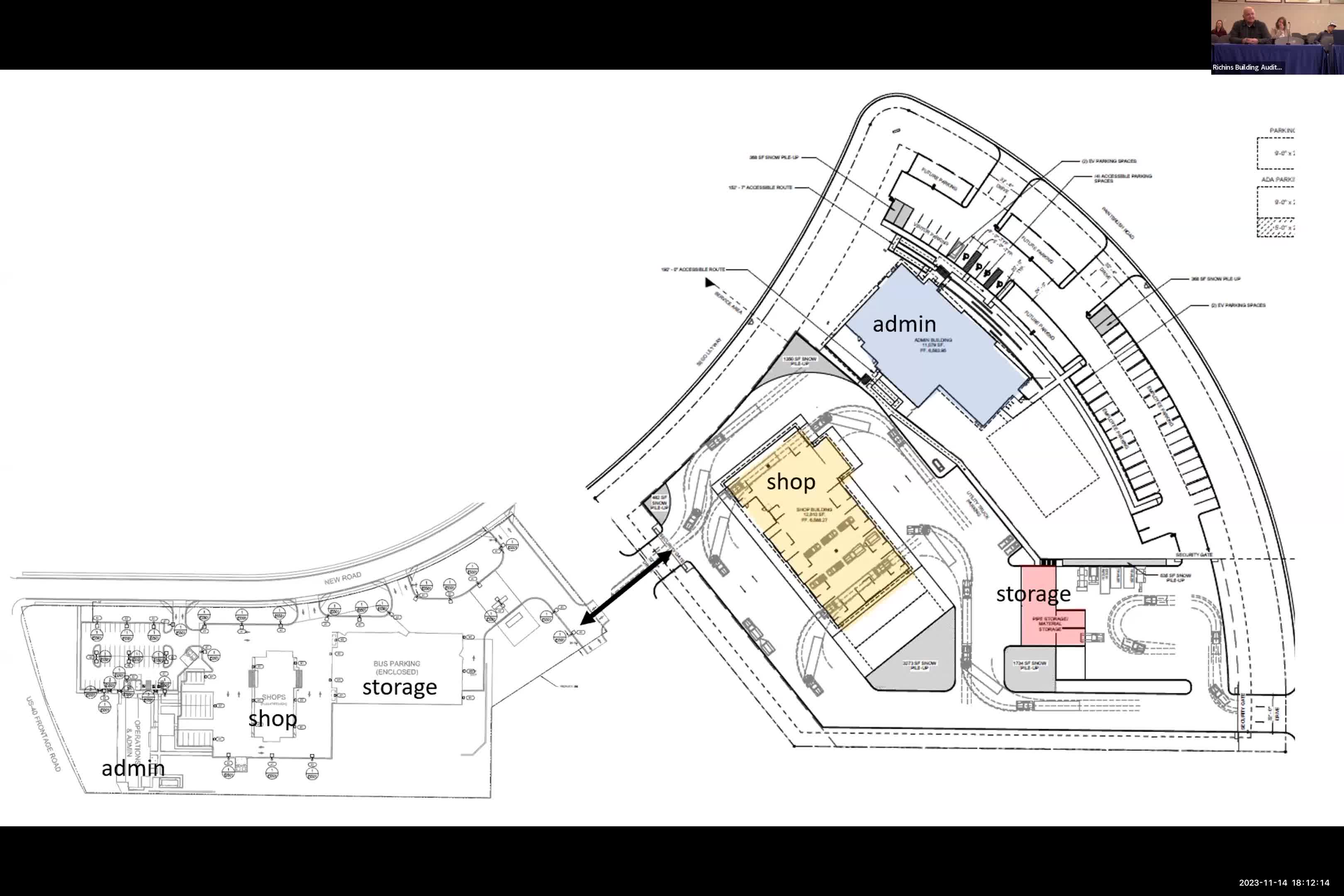
During the Snyderville Basin Planning Commission meeting on November 14, 2023, discussions centered on energy efficiency standards and sustainable building practices for upcoming projects. The meeting highlighted the importance of adhering to energy efficiency guidelines, particularly for a new shop building, which is being designed to meet the Division of Facilities Construction and Management (DFCM) performance building standards.

Ken Weeden, an architect from CRSA, confirmed that these standards are crucial for ensuring compliance with energy efficiency requirements. However, he noted that energy efficiency is not part of the commission's review criteria, limiting their ability to mandate specific energy-saving measures during the planning process.

The conversation also touched on the potential for solar energy integration. While the project team explored the feasibility of constructing all-electric buildings, they found the cost to be prohibitive. Nonetheless, they are incorporating four electric vehicle (EV) charging stations and ensuring that the building's roof is designed to support future solar panel installation.

Additionally, the commission discussed the inclusion of a water conservation garden and meadow in the Master Planned Development (MPD), emphasizing the community's commitment to sustainable practices. This initiative aims to enhance local ecology while promoting water conservation.

As the meeting concluded, the commission's focus on energy efficiency and sustainability reflects a growing commitment to environmentally responsible development in the Snyderville Basin. The discussions set the stage for future projects that prioritize both community needs and ecological stewardship.

Don't Miss a Word: See the Full Meeting!

Go beyond summaries. Unlock every video, transcript, and key insight with a Founder Membership.

Get instant access to full meeting videos
Search and clip any phrase from complete transcripts
Receive AI-powered summaries & custom alerts
Enjoy lifetime, unrestricted access to government data
Access Full Meeting

30-day money-back guarantee

Sponsors

Proudly supported by sponsors who keep Utah articles free in 2025

Excel Chiropractic
Excel Chiropractic
Scribe from Workplace AI
Scribe from Workplace AI