Get Full Government Meeting Transcripts, Videos, & Alerts Forever!

Zoning committee approves landscaping buffers for Oak Hill Drive development

May 08, 2024 | Cranston City, Providence County, Rhode Island



Black Friday Offer

Get Lifetime Access to Full Government Meeting Transcripts

Lifetime access to full videos, transcriptions, searches, and alerts at a county, city, state, and federal level.

$99/year $199 LIFETIME
Founder Member One-Time Payment

Full Video Access

Watch full, unedited government meeting videos

Unlimited Transcripts

Access and analyze unlimited searchable transcripts

Real-Time Alerts

Get real-time alerts on policies & leaders you track

AI-Generated Summaries

Read AI-generated summaries of meeting discussions

Unlimited Searches

Perform unlimited searches with no monthly limits

Claim Your Spot Now

Limited Spots Available • 30-day money-back guarantee

This article was created by AI summarizing key points discussed. AI makes mistakes, so for full details and context, please refer to the video of the full meeting. Please report any errors so we can fix them. Report an error »

Zoning committee approves landscaping buffers for Oak Hill Drive development
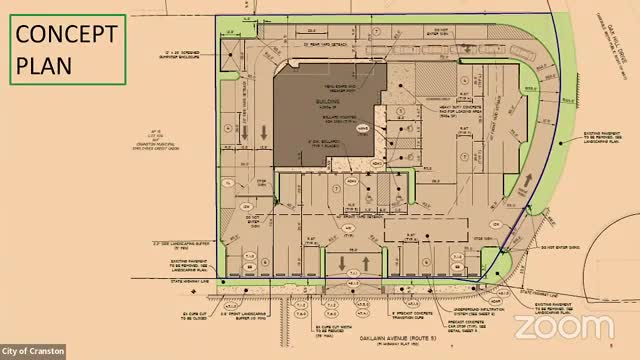
In the heart of Cranston City, the City Plan Commission convened on May 7, 2024, to discuss significant developments that could reshape local neighborhoods. As the meeting unfolded, the focus turned to a proposed project that aims to enhance the area’s landscape while addressing community concerns.

One of the key topics was the introduction of a landscaping buffer along Oak Hill Drive and Oak Lawn Avenue. Currently, these streets lack any greenery, but the new plan proposes a minimum five-foot strip of landscaping adjacent to property lines where parking and circulation occur. This initiative is designed to create a more inviting atmosphere and improve the visual appeal of the area.

The proposal also includes additional buffers along internal property lines, which are not present today. A notable feature is the introduction of a five-and-a-half-foot buffer along the eastern residential property line, which aims to provide a transition between commercial and residential spaces. The landscape architect, along with other experts, will further elaborate on these measurements and the inclusion of fencing and additional landscaping to enhance privacy and aesthetics.

Another point of discussion was the zoning relief request concerning landscape islands at the end of parking aisles. While the proposal initially called for six-foot by twelve-foot islands, the applicant has adjusted the design to provide four-foot by eighteen-foot islands. This change, while different in dimensions, still meets the overall square footage requirement and is intended to maintain the functionality of the parking layout.

The meeting also touched on noise abatement measures and signage, which will be addressed by the applicant in further detail. As the commission deliberates on these proposals, the community watches closely, hopeful that these developments will not only beautify the area but also foster a harmonious coexistence between residential and commercial spaces. The outcome of this meeting could set a precedent for future projects in Cranston, reflecting the city’s commitment to thoughtful urban planning.

View full meeting

This article is based on a recent meeting—watch the full video and explore the complete transcript for deeper insights into the discussion.

View full meeting