Get Full Government Meeting Transcripts, Videos, & Alerts Forever!

Thomas Worthington project updates traffic flow and parking for upcoming school year

February 21, 2024 | Pickerington Local, School Districts, Ohio



Black Friday Offer

Get Lifetime Access to Full Government Meeting Transcripts

$99/year $199 LIFETIME

Lifetime access to full videos, transcriptions, searches & alerts • County, city, state & federal

Full Videos
Transcripts
Unlimited Searches
Real-Time Alerts
AI Summaries
Claim Your Spot Now

Limited Spots • 30-day guarantee

This article was created by AI summarizing key points discussed. AI makes mistakes, so for full details and context, please refer to the video of the full meeting. Please report any errors so we can fix them. Report an error »

Thomas Worthington project updates traffic flow and parking for upcoming school year
The Pickerington Local School District is set to undergo significant changes as construction progresses on the Thomas Worthington High School, with plans that will reshape traffic flow and parking for students, staff, and visitors. During a recent Board of Education meeting, Mike and Randy presented an update on the construction timeline and its implications for the school community.

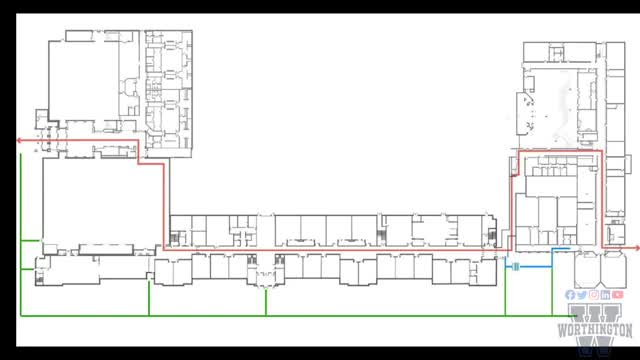
One of the most notable changes is the relocation of key student services, including the clinic and counseling offices, to the old building. This move aims to ensure accessibility for parents needing to pick up their children while maintaining essential services during the construction period. Additionally, hallway monitors will be stationed at critical junctions to manage student traffic flow, which is expected to be congested at peak times.

The construction will also impact parking availability, with over a hundred staff parking spaces lost due to the construction area. However, the district plans to designate some student parking spots for staff use to mitigate the loss. A temporary band practice field will be created from gravel, designed to meet the needs of the school's music program while also serving as emergency parking during larger events.

The construction will necessitate changes in traffic patterns around the school. A new parent drop-off loop will be established, and visitors will be directed to park in designated areas to avoid conflicts with school buses. The back of the building will be closed off for construction activities, further altering access routes.

The anticipated completion of the new facilities is set for 2025, with the construction expected to create a more energy-efficient and functional environment for students. The design incorporates elements of neoclassical architecture, reflecting the community's historical context and aesthetic preferences.

As the district navigates these changes, officials emphasize the importance of planning to minimize disruptions and ensure that educational activities continue smoothly. The community can expect a transformed Thomas Worthington High School that will serve its students for decades to come.

View full meeting

This article is based on a recent meeting—watch the full video and explore the complete transcript for deeper insights into the discussion.

View full meeting

Sponsors

Proudly supported by sponsors who keep Ohio articles free in 2025

https://workplace-ai.com/
https://workplace-ai.com/