Get Full Government Meeting Transcripts, Videos, & Alerts Forever!

Thomas Worthington adopts temporary measures for music and dining spaces during renovations

February 21, 2024 | Pickerington Local, School Districts, Ohio



Black Friday Offer

Get Lifetime Access to Full Government Meeting Transcripts

Lifetime access to full videos, transcriptions, searches, and alerts at a county, city, state, and federal level.

$99/year $199 LIFETIME
Founder Member One-Time Payment

Full Video Access

Watch full, unedited government meeting videos

Unlimited Transcripts

Access and analyze unlimited searchable transcripts

Real-Time Alerts

Get real-time alerts on policies & leaders you track

AI-Generated Summaries

Read AI-generated summaries of meeting discussions

Unlimited Searches

Perform unlimited searches with no monthly limits

Claim Your Spot Now

Limited Spots Available • 30-day money-back guarantee

This article was created by AI summarizing key points discussed. AI makes mistakes, so for full details and context, please refer to the video of the full meeting. Please report any errors so we can fix them. Report an error »

Thomas Worthington adopts temporary measures for music and dining spaces during renovations
During the recent Board of Education meeting in Pickerington, Ohio, significant discussions centered around the ongoing construction projects at Thomas Worthington High School. The meeting highlighted the challenges and solutions being implemented to ensure a smooth transition during the renovation process.

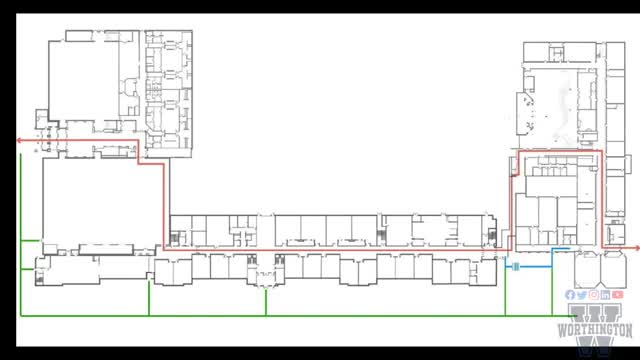
One of the primary topics was the temporary modifications to the auxiliary gym, where temporary walls will be constructed using existing locker and music storage units. This innovative approach aims to create secure spaces for musical instruments while providing the arts program with the best possible environment under the current conditions.

Accessibility was another critical issue addressed. The renovation will limit access to some classrooms on the second story of the old building, particularly those on the far east side near Evening Street. To mitigate accessibility challenges, a new lift will be installed at the southeast corner of the building, replacing the old elevator that will no longer be operational. This lift will ensure that students and staff can access the upper levels of the building safely.

Traffic concerns were also raised, with the understanding that there will be some disruptions this year due to construction. However, the team at Thomas Worthington, along with various stakeholders, is committed to minimizing these obstacles as much as possible.

A notable impact of the renovations is the absence of a kitchen during the construction period. The food service team is working diligently to prepare meals at an alternate location, ensuring that students still have access to a variety of food options. While food will be prepared off-site and brought in daily, there will still be designated areas for students to eat and gather.

Overall, the meeting underscored the collaborative efforts of the school administration and staff to address the challenges posed by the construction. As the renovation progresses, the community can expect continued updates and solutions aimed at enhancing the educational environment at Thomas Worthington High School.

View full meeting

This article is based on a recent meeting—watch the full video and explore the complete transcript for deeper insights into the discussion.

View full meeting

Sponsors

Proudly supported by sponsors who keep Ohio articles free in 2025

https://workplace-ai.com/
https://workplace-ai.com/