Citizen Portal
Citizen Portal
  • News
    Alerts
Sign In

Article not found

This article is no longer available. But don't worry—we've gathered other articles that discuss the same topic.

LPC approves modified rear‑yard window plan at Hamilton Heights rowhouse, asks applicant to drop fourth‑floor rear addition
LPC approves modified rear‑yard window plan at Hamilton Heights rowhouse, asks applicant to drop fourth‑floor rear addition
LPC asks for more evidence on proposed limestone recladding at 10 East 80th Street; no action taken
LPC asks for more evidence on proposed limestone recladding at 10 East 80th Street; no action taken
Sotheby’s plan for Whitney’s sunken garden approved with staff follow‑up on conduit, signage and planters
Sotheby’s plan for Whitney’s sunken garden approved with staff follow‑up on conduit, signage and planters
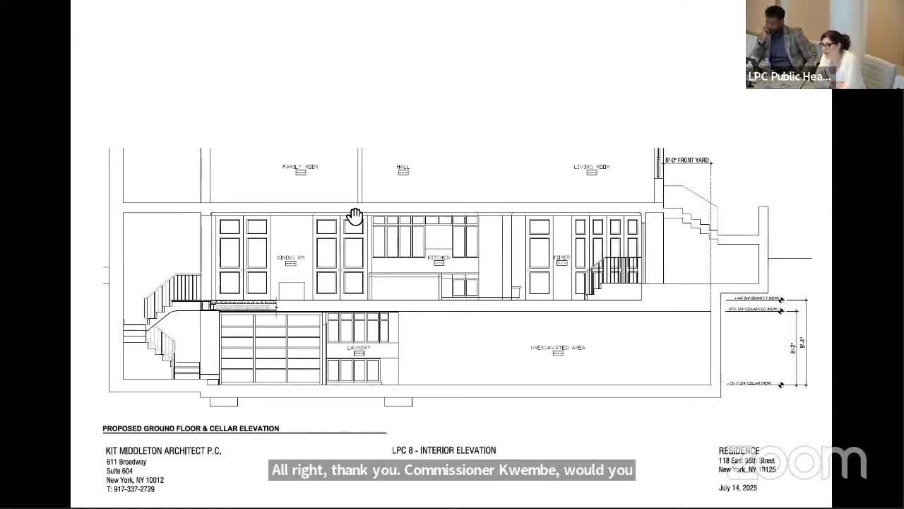
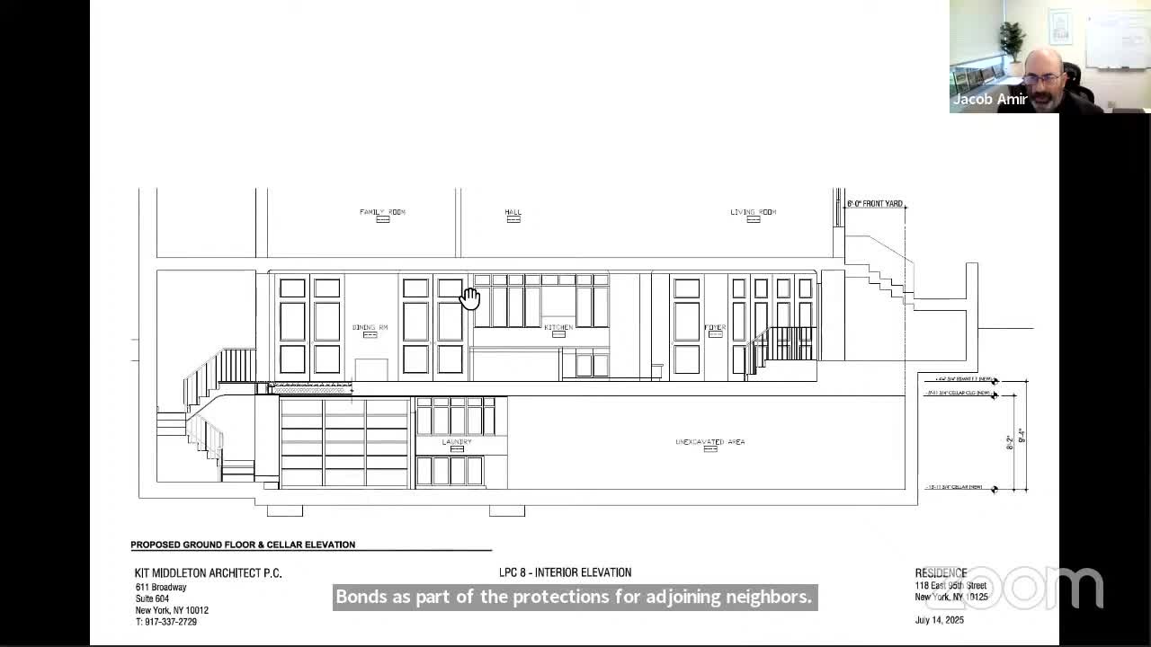
LPC approves cellar excavation at 118 East 90th Street with enhanced engineering review after neighbors object
LPC approves cellar excavation at 118 East 90th Street with enhanced engineering review after neighbors object
LPC tells Brill Building tenant to drop canopy, mount signage in louvers
LPC tells Brill Building tenant to drop canopy, mount signage in louvers
Commission OKs raised parapet and new balustrade at 40 Fifth Avenue in Greenwich Village
Commission OKs raised parapet and new balustrade at 40 Fifth Avenue in Greenwich Village
Citizen PortalCitizen Portal

Citizen Portal Inc. All rights reserved.

Find Your State

ALAKARAZCACOCTDEDCFLGAGUHIIAIDILINKSKYLAMAMDMEMIMNMOMSMTNENHNJNMNVNYNCNDOHOKORPAPRRISCSDTNTXUTVAVTWAWIWVWYGUASVI

Get Involved

VolunteerAbout Citizen Portal

Follow Us

LinkedIn iconTikTok iconInstagram iconYouTube iconTwitter iconFacebook iconMastodon icon
support@CitizenPortal.aiPrivacy PolicyTerms of ServiceToday