Limited Time Offer. Become a Founder Member Now!

Planning commission backs rezoning 10‑acre Halcyon parcel to R‑1‑15 with park, pathways and donation conditions

October 15, 2025 | Weber County, Utah


This article was created by AI summarizing key points discussed. AI makes mistakes, so for full details and context, please refer to the video of the full meeting. Please report any errors so we can fix them. Report an error »

Planning commission backs rezoning 10‑acre Halcyon parcel to R‑1‑15 with park, pathways and donation conditions
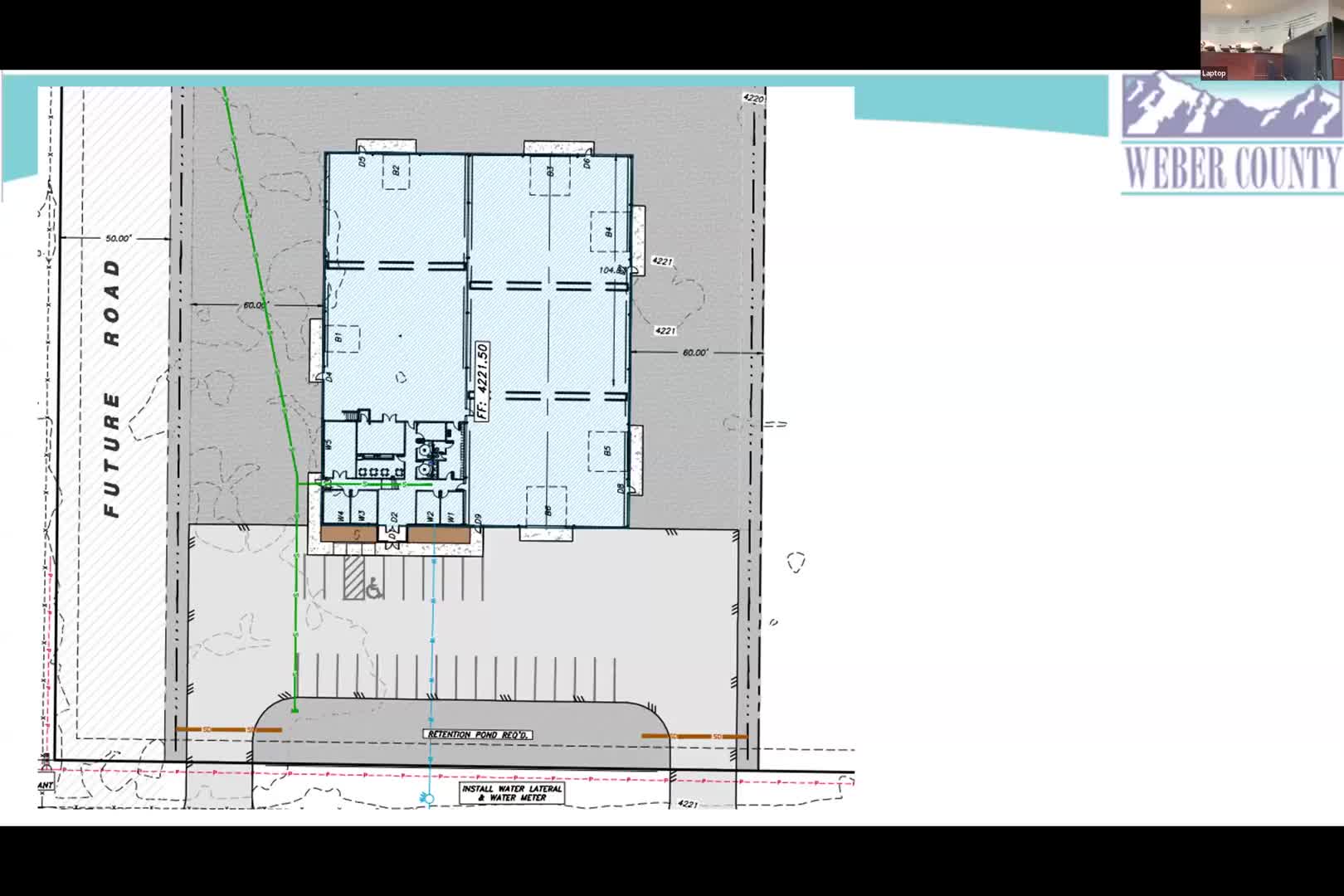
The Weber County Planning Commission recommended approval of a rezoning application to change a 10‑acre tract in the Halcyon Estates area from A‑1 agricultural to R‑1‑15 residential and to adjust the county’s future land‑use map accordingly. Commissioners and staff discussed connectivity, pathway and road‑stub alternatives, water and park funding, and whether to include the larger Phase 1 area in the rezoning. Public comment included concerns about perceived loss of open space and infrastructure delays.

Developer representatives said they would contribute $7,500 per lot toward parks and had discussed transferring water shares to the parks district. Planning staff recommended a development agreement template with specific commitments: pathway and street connectivity expectations, a time‑limited development agreement and potential park funding. Commissioners asked staff to clarify whether the rezoning should be limited to the 10‑acre parcel (and an immediately adjacent phase) to avoid changing zoning across already‑built phases; commissioners also asked that the development agreement include language on vesting if subdivision is acted upon within the term.

Public commenters expressed mixed views: some supported the rezoning and the prospect of funds for parks and completed pathways; others said they bought into a different development expectation and opposed the loss of perceived open space. Commissioners discussed implementation timelines and whether to require the pathway connection through a private cul‑de‑sac; staff advised that the developer should negotiate easements or purchase land where necessary and that the commission could request the pathway as a condition and return for reconsideration if negotiations fail.

The commission approved a motion recommending approval with the following added conditions requested by commissioners: a $7,500 per‑lot parks donation (applied to the existing and new lots within the rezoned area), a three‑year development agreement term with a one‑year extension, requirements for pathway connectivity (including a West‑side pathway tie to Bristol Farms and a cul‑de‑sac connection where feasible), and that any surplus water associated with the property be donated to the parks district if not needed for the development. The motion passed by majority vote; planning staff will forward the recommendation and draft development agreement language to the county commission for final action.

View full meeting

This article is based on a recent meeting—watch the full video and explore the complete transcript for deeper insights into the discussion.

View full meeting

Sponsors

Proudly supported by sponsors who keep Utah articles free in 2025

Excel Chiropractic
Excel Chiropractic
Scribe from Workplace AI
Scribe from Workplace AI