Commission OKs accessory dwelling unit at 834 Midgen Ave.; waives engineered site plan
Summary
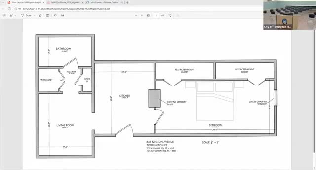
The commission approved site plan 1590 to convert part of a detached garage at 834 Midgen Ave. into a 452 sq ft ADU, waived the engineered site-plan requirement because no exterior work is proposed, and conditioned approval on a sanitary sewer discharge permit and required building permits.
Torrington — The Planning and Zoning Commission voted Dec. 17 to approve a 452-square-foot accessory dwelling unit (ADU) within an existing detached garage at 834 Midgen Avenue, subject to standard building permits and sanitary-sewer approval.
Contractor Lynn Kovac presented the application on behalf of property owners Hank and Denise Randall. City planner Jeremy Leifer told commissioners the ADU layout meets the regulations (minimum 400 sq ft and maximum 30% of the primary dwelling) and recommended waiving the engineered site plan since no exterior work is proposed. Leifer noted a sanitary sewer discharge permit will be required prior to zoning sign-off on a certificate of occupancy and that building permits must be obtained.
Commissioner Donna Greco moved for approval with the conditions Leifer listed; the motion was seconded and approved by voice vote. The commission also waived the engineered-site-plan submission for this interior conversion.

